Generador de Precios. Rehabilitación. España
TipologÃas de obra
Fabricantes
Seguridad y salud
Sugerencias
Open BIM Systems
Emplazamiento y caracterÃsticas
Acceder
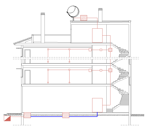
instalación enterrada
Espere, por favor
Ejecutando proceso...