| Vidrio laminar de seguridad, antibala | ||
| LVS030 | Vidrio laminar de seguridad, antibala | |
|
Vidrio laminar de seguridad, antibala, de 54 mm de espesor, incoloro, clase de resistencia BR4-NS, según UNE-EN 1063, fijado sobre carpintería con perfil continuo de neopreno. | ||
Precio |
|
Exportación |
|

UNIDAD DE OBRA LVS030: VIDRIO LAMINAR DE SEGURIDAD, ANTIBALA.
CARACTERÍSTICAS TÉCNICAS
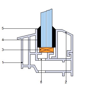
Vidrio laminar de seguridad, antibala, de 54 mm de espesor, incoloro, clase de resistencia BR4-NS, según UNE-EN 1063, fijado sobre carpintería con perfil continuo de neopreno.
NORMATIVA DE APLICACIÓN
Ejecución: NTE-FVE. Fachadas: Vidrios especiales.
CRITERIO DE MEDICIÓN EN PROYECTO
Superficie de carpintería a acristalar, según documentación gráfica de Proyecto, incluyendo en cada hoja vidriera las dimensiones del bastidor.
CONDICIONES PREVIAS QUE HAN DE CUMPLIRSE ANTES DE LA EJECUCIÓN DE LAS UNIDADES DE OBRA
DEL SOPORTE.
Se comprobará que la carpintería está completamente montada y fijada al elemento soporte. Se comprobará la ausencia de cualquier tipo de materia en los galces de la carpintería.
PROCESO DE EJECUCIÓN
FASES DE EJECUCIÓN.
Colocación del perfil de neopreno en el perímetro de la hoja de vidrio. Colocación de la hoja de vidrio en el marco. Señalización de las hojas.
CONDICIONES DE TERMINACIÓN.
El conjunto será monolítico.
CRITERIO DE MEDICIÓN EN OBRA Y CONDICIONES DE ABONO
Se medirá la superficie realmente ejecutada según especificaciones de Proyecto, sumando, para cada una de las piezas, la superficie resultante de redondear por exceso cada una de sus aristas a múltiplos de 30 mm.