Abertura de paso para ventilación, con aireador lineal. Colocación en puerta de paso
IVA025 Abertura de paso para ventilación, con aireador lineal. Colocación en puerta de paso
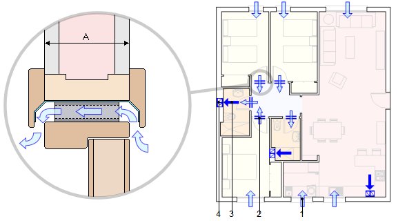
Abertura de paso para recirculación del aire del interior, dotada de aireador de paso divisible, telescópico, compuesto por un elemento central de material fonoabsorbente de 60x20 mm de sección y 825 mm de longitud, con dos perfiles superiores telescópicos de PVC, sección 143 cm³, caudal nominal 17,8 l/s y aislamiento acústico de 29 dBA, según UNE-EN ISO 717-1. Colocación encima de la hoja de la puerta, de 725 mm de anchura, entre el cerco y el precerco, en partición desde 60 hasta 100 mm de espesor.
Precio

44,27€

Ud
Exportación

Aireador
Espesor de la partición "A" (mm)
Anchura de la hoja de la puerta (mm)
1:
Abertura de admisión.
2:
Abertura de paso.
3:
Abertura de extracción.
4:
Conducto de extracción.

Código

Unidad

Descripción

Rendimiento

Precio

unitario

Importe

1

 

Materiales

   

mt42sva245a

Ud

Aireador de paso divisible, telescópico, compuesto por un elemento central de material fonoabsorbente de 60x20 mm de sección y 825 mm de longitud, con dos perfiles superiores telescópicos de PVC, sección 143 cm³, caudal nominal 17,8 l/s y aislamiento acústico de 29 dBA, según UNE-EN ISO 717-1.

0,900

34,00

30,60

     

Subtotal materiales:

30,60

2

 

Mano de obra

   

mo011

h

Oficial 1ª montador.

0,270

24,64

6,65

mo080

h

Ayudante montador.

0,270

22,77

6,15

     

Subtotal mano de obra:

12,80

3

 

Costes directos complementarios

   
 

%

Costes directos complementarios

2,000

43,40

0,87

Coste de mantenimiento decenal: 2,21€ en los primeros 10 años.

Costes directos (1+2+3):

44,27



UNIDAD DE OBRA IVA025: ABERTURA DE PASO PARA VENTILACIÓN, CON AIREADOR LINEAL. COLOCACIÓN EN PUERTA DE PASO.


CARACTERÍSTICAS TÉCNICAS

Abertura de paso para recirculación del aire del interior, dotada de aireador de paso divisible, telescópico, compuesto por un elemento central de material fonoabsorbente de 60x20 mm de sección y 825 mm de longitud, con dos perfiles superiores telescópicos de PVC, sección 143 cm³, caudal nominal 17,8 l/s y aislamiento acústico de 29 dBA, según UNE-EN ISO 717-1. Colocación encima de la hoja de la puerta, de 725 mm de anchura, entre el cerco y el precerco, en partición desde 60 hasta 100 mm de espesor.



NORMATIVA DE APLICACIÓN

Instalación: CTE. DB-HS Salubridad.


CRITERIO DE MEDICIÓN EN PROYECTO

Número de unidades previstas, según documentación gráfica de Proyecto.



CONDICIONES PREVIAS QUE HAN DE CUMPLIRSE ANTES DE LA EJECUCIÓN DE LAS UNIDADES DE OBRA


DEL SOPORTE.

Se comprobará que su situación se corresponde con la de Proyecto y que hay espacio suficiente para su instalación.



PROCESO DE EJECUCIÓN


FASES DE EJECUCIÓN.

Replanteo. Colocación y fijación del aireador.


CONDICIONES DE TERMINACIÓN.

La ventilación será adecuada.



CRITERIO DE MEDICIÓN EN OBRA Y CONDICIONES DE ABONO

Se medirá el número de unidades realmente ejecutadas según especificaciones de Proyecto.



Código LER

Tipo

Peso (kg)

Volumen (l)

15 01 01

Envases de papel y cartón.

0,082

0,109

17 02 03

Plástico.

0,041

0,068

 

Envases:

0,123

0,178